皮带斗式提升机
发布日期:13-09-03 17:41:16 浏览次数:
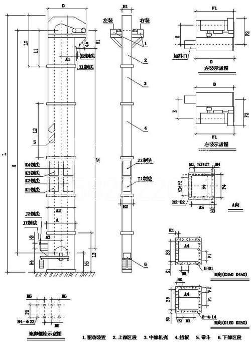
D型斗式提升机
|
D型尺寸表 |
|||||||||||||||||||
|
型号 |
上部区段 |
中部区段 |
下部区段 |
||||||||||||||||
|
LO |
L1 |
A1 |
H1 |
H2 |
D |
L2 |
A2 |
A |
B1 |
B2 |
L3 |
A3 |
H3 |
H4 |
H5 |
||||
|
D160 |
1953 |
1500 |
503 |
800 |
55 |
1147 |
2100 |
1500 |
1200 |
800 |
906 |
320 |
426 |
1750 |
753 |
260 |
1050 |
530 |
|
|
D250 |
2153 |
1680 |
603 |
900 |
60 |
1389 |
2000 |
1600 |
800 |
1000 |
1106 |
450 |
556 |
1900 |
903 |
290 |
1250 |
620 |
|
|
D350 |
2119 |
1500 |
704 |
1100 |
70 |
1600 |
2000 |
1500 |
1000 |
1100 |
1236 |
552 |
684 |
1950 |
1004 |
330 |
1440 |
650 |
|
|
D450 |
2479 |
1760 |
800 |
1200 |
80 |
1883 |
2560 |
1920 |
1280 |
1300 |
1458 |
650 |
808 |
2300 |
1154 |
370 |
1630 |
800 |
|
|
型号 |
卸料口 |
进料口 |
|||||||||||||||||
|
A4 |
B3 |
M1 |
P1 |
P2 |
E1 |
D1 |
B4 |
A5 |
N2-D2 |
N3*M3 |
M3 |
M4 |
N3*P3 |
P4 |
|||||
|
D160 |
350 |
320 |
200 |
170 |
108 |
50 |
φ14 |
250 |
350 |
6-φ14 |
1*240 |
97 |
35 |
1*160 |
294 |
||||
|
D250 |
400 |
450 |
250 |
300 |
108 |
50 |
φ14 |
350 |
400 |
6-φ14 |
1*290 |
105 |
35 |
1*200 |
410 |
||||
|
D350 |
500 |
552 |
290 |
315 |
|
63 |
φ18 |
450 |
450 |
6-φ18 |
2*175 |
95 |
35 |
2*175 |
510 |
||||
|
D450 |
600 |
650 |
345 |
370 |
|
75 |
φ22 |
490 |
500 |
9-φ18 |
2*160 |
120 |
90 |
2*175 |
560 |
||||
|
型号 |
地脚螺栓 |
总高度 |
进卸料口高度 |
||||||||||||||||
|
M6 |
P6 |
N4 |
L |
X1J1制法 |
X1J2制法 |
X2J1制法 |
X2J2制法 |
||||||||||||
|
D160 |
300 |
400 |
6 |
H+983 |
H-1320 |
H-1580 |
H-1375 |
H-1635 |
|||||||||||
|
D250 |
400 |
530 |
6 |
H+1173 |
H-1530 |
H-1820 |
H-1590 |
H-1880 |
|||||||||||
|
D350 |
450 |
650 |
6 |
H+1269 |
H-1890 |
H-2220 |
H-1960 |
H-2290 |
|||||||||||
|
D450 |
360 |
770 |
8 |
H+1519 |
H-2030 |
H-2030 |
H-2110 |
H-2480 |
|||||||||||
|
型号 |
D160 |
D250 |
D350 |
D450 |
|
||||||||||||||
|
C1 |
C1 |
C2 |
C3 |
C4 |
C1 |
C2 |
C3 |
C4 |
C2 |
||||||||||
|
功率kw |
2.2 |
3 |
5.5 |
5.5 |
7.5 |
5.5 |
7.5 |
11 |
7.5 |
11 |
|||||||||
|
减速器 |
ZQ25 |
ZQ35 |
ZQ35 |
ZQ40 |
ZQ40 |
ZQ40 |
ZQ40 |
ZQ50 |
ZQ40 |
ZQ50 |
|||||||||
|
F1 |
1127 |
1566 |
1566 |
1628 |
1628 |
1680 |
1680 |
1797 |
1859 |
1859 |
|||||||||
|
F2 |
867 |
1027 |
1067 |
1122 |
1177 |
1150 |
1235 |
1280 |
1310 |
1320 |
|||||||||
|
E |
647 |
728 |
728 |
847 |
847 |
905 |
905 |
930 |
982 |
1007 |
|||||||||
|
D型功率表 |
|||||||||||||||||||
|
型号 |
D160 |
D250 |
D350 |
D450 |
|||||||||||||||
|
H(m) |
功率kw |
H(m) |
功率kw |
H(m) |
功率kw |
H(m) |
功率kw |
||||||||||||
|
S |
Q |
S |
Q |
S |
Q |
S |
Q |
||||||||||||
|
容量t/㎥ |
0.8 |
34 |
50 |
1.18 |
41 |
57 |
4.2 |
26 |
30 |
5 |
23 |
23 |
7.5 |
||||||
|
1 |
30 |
46 |
1.34 |
37 |
51 |
4.7 |
22 |
26 |
5.4 |
19 |
19 |
8.1 |
|||||||
|
1.25 |
27 |
42 |
1.48 |
32 |
44 |
5.2 |
18 |
20 |
6.2 |
16 |
15 |
9.5 |
|||||||
|
1.6 |
22 |
36 |
1.67 |
26 |
36 |
5.7 |
13 |
15 |
6.4 |
11 |
11 |
9.7 |
|||||||
|
2 |
17 |
32 |
1.86 |
19 |
26 |
5.9 |
9 |
11 |
6.5 |
8 |
8 |
9.8 |
|||||||
订货型号编写
订货型号包括:型号及料斗形式---进卸料口形式--检视门位置--驱动号--上下轴距(m)--左右装。
例如:D160型、浅斗Q、卸料X1进料J1、检视门K1Z1、驱动号C1、上下轴距11.42m、右装斗提机型号为:D160Q---X1J1---K1Z1---C1---C11.42---右装。
最热动态
- ● NE系列板链式提升机
- ● 斗提机械输送带问题处理方法
- ● 垂直提升机试车时要注意什么问题
- ● 掌握以下5点让你选到合适型号的斗
- ● 胶带式提升机效率更高
- ● 怎样让斗子输送机多用几年?
- ● 斗式提升机链条更换快速方法
- ● 斗式提升机马力计算
- ● 斗式提升机工程指南
- ● 斗式提升机结构








13582022680
产品咨询
关于我们
联系我们