安信彩票

TD型斗式提升机

发布日期:13-08-31 15:00:15 浏览次数:

 

(一)概述

TDD斗式提升机适于垂直输送粉状、粒状、及小块状的磨琢性较小的散状物料,如粮食、煤、水泥、碎矿石等,提升高度最高40m,其特点为,结构简单,运行平稳,挖取式装料,离心式卸料,物料温度不超过60℃。TD型按JB3926——85垂直斗式提升机》标准设计制造,与传统D型斗提机相比,输送效率高,料斗形式多,应优先选用。

 

 

(二)技术参数

型号

TD160

TD250

TD315

TD400

料斗形式

Q

H

Zd

Sd

Q

H

Zd

Sd

Q

H

Zd

Sd

Q

H

Zd

Sd

输送量m³/h

5.4

9.6

9.6

16

12

22

23

35

17

30

25

40

24

46

41

66

斗宽mm

160

250

315

400

斗容L

0.5

0.9

1.2

1.9

1.3

2.2

3.0

4.6

2

3.6

3.8

5.8

3.1

5.6

5.9

9.4

斗距mm

280

350

360

450

400

500

480

560

带宽mm

200

300

400

500

斗速m/s

1.4

1.6

1.6

1.8

物料最大快mm

25

35

45

55

型号

TD500

TD630

D160

D250

D350

D450

料斗形式

Q

H

Zd

Sd

H

Zd

Sd

Q

S

Q

S

Q

S

Q

S

输送量m³/h

38

70

58

92

85

89

142

3.1

8

11.8

21.6

25

42

48

69.5

斗宽mm

500

630

160

250

350

450

斗容L

4.8

9

9.3

15

14

14.6

23.5

0.65

1.1

2.6

3.2

7

7.8

14.5

15

斗距mm

500

625

710

300

400

500

640

带宽mm

600

700

200

300

400

500

斗速m/s

1.8

2

1

1.25

1.25

1.25

物料最大块mm

60

70

25

35

45

55

 

注:1、表中斗容为计算斗容,输送量按填充系数0.6计算得出。
  2、斗提机料斗用途为:
  浅料斗:输送潮湿、易结块、难抛出的物料。如湿沙、湿煤等。

  深料斗:输送干燥的、松散的、易抛出的物料。如水泥、煤块、碎石等。

 

 

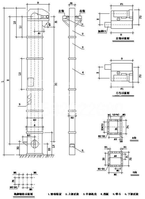
(三)TD型斗式提升机

TD型斗式提升机图纸 

TD型尺寸表

型号

上部区段

中部区段

下部区段

LO

L1

A1

H1

D

L2

A2

A

B1

B2

L3

A3

H2

H3

TD160

2273

1610

548

630

1347

1750

1400

1060

850

982

315

447

1500

688

1000

700

TD250

2295

1580

713

750

1675

2000

1600

1350

1120

1252

450

582

1800

918

1320

820

TD315

2590

1800

754

785

1666

2000

1500

1000

1120

1254

570

700

1800

964

1320

850

TD400

3045

2205

844

850

1969

2240

1680

1120

1400

1548

670

818

2000

1154

1600

950

TD500

3360

2445

885

1000

2080

2500

1875

1250

1400

1570

770

950

2300

1204

1600

950

TD630

3394

2265

1045

1200

2216

2840

2130

1420

1690

1850

890

1060

2500

1429

1885

950

型号

卸料口

进料口

A4

B3

M1

M2

P1

P2

N1-D1

E1

A5

B4

N2-D2

N3*M3

M4

M5

P4

TD160

365

321

150

431

150

381

12-φ12

50

260

260

9-φ12

2*110

43

20

306

TD250

600

456

200

676

200

526

12-φ12

63

355

320

9-φ12

2*150

58

22

370

TD315

560

566

230

638

230

638

12-φ12

63

400

400

9-φ12

2*160

80

30

460

TD400

670

676

295

758

295

758

12-φ14

75

450

450

9-φ14

2*175

100

30

510

TD500

770

778

355

880

300

880

12-φ18

100

500

500

9-φ14

2*210

65

40

550

TD630

700

898

300

800

280

1000

14-φ18

100

580

630

12-φ14

3*160

85

45

700

型号

进料口

轮廓高度

提升高度

上下轴距系列(n为整数)

地脚螺栓

N3*P3

L

HO

H(最大40000)

M6

P6

N4-D4

TD160

2*110

H+1363

H-930

4513+n*350

250

400

8-φ18

TD250

2*155

H+1535

H-1250

5710+n*350

300

400

8-φ18

TD315

2*160

H+1640

H-1255

5743+n*500

300

648

8-φ18

TD400

2*215

H+1790

H-1500

5490+n*560

400

768

8-φ22

TD500

2*220

H+1865

H-1700

6600+n*625

400

900

8-φ22

TD630

3*160

H+2079

H-2135

5960+n*710

380

1020

10-φ30

型号

TD160

TD250

TD315

TD400

C1

C2

C3

C1

C2

C3

C1

C2

C3

C1

C2

功率kw

4

5.5

7.5

5.5

7.5

11

7.5

11

15

11

15

减速器

ZQ35

ZQ35

ZQ40

ZQ40

ZQ40

ZQ50

ZQ40

ZQ50

ZQ50

ZQ50

ZQ50

F1

1450

1450

1565

1687

1687

1787

1687

1810

1810

1949

1949

F2

1030

1030

1120

1200

1250

1260

1350

1360

1420

1460

1530

型号

TD400

TD500

TD630

C3

C4

C1

C2

C3

C4

C1

C2

C3

C4

功率kw

18.5

22

15

18.5

22

30

22

30

37

45

减速器

ZQ65

ZQ65

ZQ50

ZQ65

ZQ65

ZQ65

ZQ65

ZQ65

ZQ65

ZQ75

F1

2240

2240

1996

2260

2260

2260

2240

2240

2240

2650

F2

1580

1580

1640

1740

1740

1780

1820

1820

1820

1920

 

 

 

TD型功率表

型号

TD160

TD250

TD315

TD400

TD500

TD630

容重t/

料斗

Hm

功率kw

Hm

功率kw

Hm

功率kw

Hm

功率kw

Hm

功率kw

Hm

功率kw

0.8

Q

40

4

40

5.5

30

7.5

40

11

40

15

 

 

 

 

 

 

40

11

 

 

 

 

 

 

H

30

4

25

5.5

20

7.5

40

11

30

15

40

22

40

5.5

40

7.5

40

11

 

 

40

18.5

 

 

Zd

30

4

25

5.5

25

7.5

40

11

34

15

40

22

40

5.5

40

7.5

40

11

 

 

40

18.5

 

 

Sd

20

4

18

5.5

18

7.5

25

11

24

15

26

22

40

5.5

35

7.5

40

11

40

15

36

18.5

40

30

 

 

40

11

 

 

 

 

40

22

 

 

1.25

Q

30

4

40

5.5

25

7.5

40

11

34

15

 

 

40

5.5

 

 

40

11

 

 

40

18.5

 

 

H

20

4

20

5.5

12

7.5

22

11

18

15

30

22

40

5.5

40

7.5

40

11

40

15

30

18.5

40

30

 

 

 

 

 

 

 

 

40

22

 

 

Zd

20

4

20

5.5

16

7.5

25

11

25

15

28

22

40

5.5

40

7.5

40

11

40

15

40

18.5

40

30

Sd

15

4

12

5.5

30

11

15

11

12

15

16

22

40

5.5

28

7.5

40

15

30

15

24

18.5

32

30

 

 

40

11

 

 

40

18.5

34

22

40

37

 

 

 

 

 

 

 

 

40

30

 

 

2

Q

20

4

22

5.5

15

7.5

25

11

25

15

 

 

40

5.5

40

7.5

40

11

40

15

40

18.5

 

 

H

20

4

12

5.5

25

11

12

11

16

18.5

18

22

40

5.5

25

7.5

40

15

26

15

26

22

34

30

 

 

40

11

 

 

40

18.5

40

30

40

37

Zd

20

4

12

5.5

30

11

15

11

12

15

16

22

40

5.5

25

7.5

40

15

30

15

22

18.5

32

30

 

 

40

11

 

 

40

18.5

32

22

40

37

 

 

 

 

 

 

 

 

40

30

 

 

Sd

22

5.5

16

7.5

18

11

16

15

14

18.5

18

30

40

7.5

30

11

34

15

26

18.5

20

22

26

37

 

 

 

 

 

 

36

22

34

30

36

45

订货型号编写

订货型号包括:型号及料斗形式---驱动号---上下轴距(m---左右装

例如:TD315型、深斗Sd、驱动号C2、上下轴距20.04m、右装斗提机型号为:

TD315Sd---C2---20.04---右装

天游8线路检测中心|欢迎您 澳门灵蛇网4949-香港灵蛇网论坛资料大全最新-灵蛇网4846cc最新版本更新内容-灵蛇网4668cc-灵蛇澳门2025年今晚看 灵蛇澳门2025年今晚看-灵蛇网4846cc-灵蛇网免费资料大全--灵蛇网4846cc最新版本更新内容-澳门灵蛇网4949 香港六玄开奖网-六玄网132432-六玄神马开奖44579-六玄公式6588777-六玄神马免费中特料-澳彩六玄网论坛6258cmcc 辉耀彩 - 首页 祥顺彩票|主页