TH型斗式提升机二
发布日期:13-08-31 15:06:39 浏览次数:
一 TH、HL型斗式提升机
(一)概述
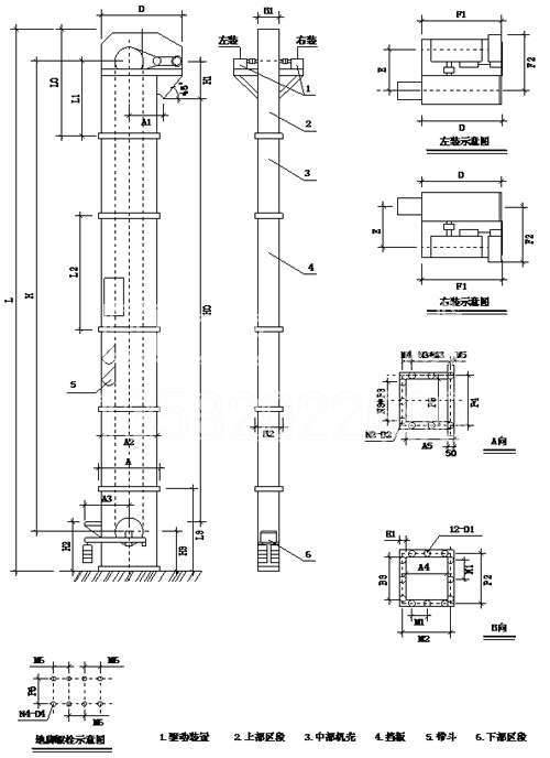
TH、HL型环链斗式提升机适用于垂直输送磨琢性较大的粉状、料状、及大块状的物料,如粮食、煤、水泥、碎矿石等,输送高度最高40m,其特点为,结构简单,运行平稳,掏取式装料,混合式或重力卸料,轮缘采用组合链轮,更换方便,链条经特殊处理寿命长,下部采用重力自动张紧装置,能保持恒定的张力,避免打滑或脱链,同时在料斗遇阻时,有一定的容让性能够有效的保护运动部件,物料温度不超过250℃,TH型按JB3926――85《垂直斗式提升机》标准设计制造,应优先选用。HL型斗提机连接尺寸同原HL型,链条、链轮、张紧装置等同TH型,即可靠性同TH型。
(二)技术参数
|
型号 |
HL300 |
HL400 |
TH315 |
TH400 |
TH500 |
TH630 |
TH800 |
TH1000 | ||||||||
|
料斗形式 |
Q |
S |
Q |
S |
Zh |
Sh |
Zh |
Sh |
Zh |
Sh |
Zh |
Sh |
Zh |
Sh |
Zh |
Sh |
|
输送量㎥/h |
16 |
28 |
30 |
47 |
35 |
60 |
58 |
94 |
73 |
118 |
114 |
185 |
115 |
235 |
135 |
285 |
|
斗宽mm |
300 |
400 |
315 |
400 |
500 |
630 |
800 |
1000 | ||||||||
|
斗容1 |
4.4 |
5.2 |
10 |
10.5 |
3.75 |
6 |
5.9 |
9.5 |
9.5 |
15 |
14.6 |
23.6 |
23.3 |
37.5 |
37.6 |
58 |
|
斗距mm |
500 |
600 |
512 |
512 |
688 |
688 |
920 |
920 | ||||||||
|
链条规格 |
18*50 |
18*50 |
18*64 |
18*64 |
22*86 |
22*86 |
26*92 |
26*92 | ||||||||
|
链轮节径mm |
630 |
670 |
630 |
710 |
800 |
900 |
1000 |
1250 | ||||||||
|
斗速m/s |
1.25 |
1.25 |
1.4 |
1.4 |
1.5 |
1.5 |
1.6 |
1.6 | ||||||||
|
物料最大块mm |
40 |
50 |
45 |
55 |
65 |
75 |
85 |
100 | ||||||||
注:1、表中斗容为计算斗容,对于“Q”形料斗,输送量按填充系数0.4计算得出;其它形式料斗,输送量按填充系数0.6计算得出。
2、TH型斗提机料斗用途:
Zh-中深斗:输送湿粘性物料,如糖、湿细沙等。
Sh-深斗:输送重的粉状至小块状物料,如水泥、砂、煤等。
3、HL型斗提机料斗的用途:
Q-浅圆底料斗:输送潮湿、易结块、难抛出的物料、如湿沙、湿煤等。
S-深圆底料斗:输送干燥的、松散的、易抛出的物料,如水泥、煤块、碎石等。
4、张紧力计算:
G=40+0.232Q·H
式中:Q--输送量(t/h),H--提升高度(mm),G--张紧力(kg)
(三)TH型斗式提升机

|
TH型尺寸表 |
|||||||||||||||||
|
型号 |
上部区段 |
中部区段 |
下部区段 |
||||||||||||||
|
L0 |
L1 |
A1 |
H1 |
D |
L2 |
A2 |
A |
B1 |
B2 |
L3 |
A3 |
H2 |
H3 |
||||
|
TH315 |
2418 |
1695 |
773 |
850 |
1823 |
2560 |
2048 |
1536 |
1250 |
1396 |
475 |
621 |
1800 |
993 |
1110 |
900 |
|
|
TH400 |
2618 |
1775 |
843 |
1200 |
2027 |
2560 |
2048 |
1536 |
1400 |
1546 |
560 |
706 |
1900 |
1163 |
1250 |
950 |
|
|
TH500 |
2777 |
1813 |
924 |
1400 |
2268 |
2752 |
2064 |
1376 |
1600 |
1768 |
670 |
838 |
2120 |
1364 |
1465 |
1060 |
|
|
TH630 |
3089 |
1995 |
1014 |
1700 |
2530 |
2752 |
2064 |
1376 |
1880 |
1986 |
800 |
968 |
2360 |
1614 |
1775 |
1240 |
|
|
型号 |
卸料口 |
进料口 |
|||||||||||||||
|
A4 |
B3 |
M1 |
M2 |
P1 |
P2 |
D1 |
E1 |
A5 |
P5 |
N2-D2 |
N3*M3 |
M4 |
M5 |
P4 |
|||
|
TH315 |
636 |
481 |
225 |
706 |
225 |
551 |
φ14 |
63 |
365 |
325 |
9-φ12 |
2*145 |
70 |
25 |
375 |
||
|
TH400 |
716 |
566 |
250 |
786 |
250 |
636 |
φ14 |
63 |
460 |
385 |
9-φ12 |
2*180 |
95 |
30 |
445 |
||
|
TH500 |
808 |
678 |
300 |
888 |
300 |
758 |
φ18 |
80 |
560 |
475 |
9-φ12 |
2*210 |
140 |
30 |
545 |
||
|
TH630 |
908 |
808 |
350 |
988 |
350 |
888 |
φ18 |
80 |
710 |
600 |
12-φ14 |
3*200 |
115 |
30 |
670 |
||
|
型号 |
进料口 |
轮廓高度 |
提升高度 |
上下轴距系列(n为整数) |
地脚螺栓 |
||||||||||||
|
N3*P3 |
L |
HO |
H(最大40000) |
M6 |
P6 |
N4-D4 |
|||||||||||
|
TH315 |
2*145 |
H+1623 |
H-1060 |
4643+n*512 |
350 |
571 |
8-φ22 |
||||||||||
|
TH400 |
2*180 |
H+1643 |
H-1500 |
4773+n*512 |
400 |
658 |
8-φ22 |
||||||||||
|
TH500 |
2*200 |
H+2024 |
H-1805 |
6998+n*688 |
360 |
788 |
10-φ26 |
||||||||||
|
TH630 |
3*280 |
H+2374 |
H-2235 |
7188+n*688 |
400 |
918 |
10-φ26 |
||||||||||
|
型号 |
TH315 |
TH400 |
TH500 |
TH630 |
|||||||||||||
|
C1 |
C2 |
C3 |
C1 |
C2 |
C3 |
C1 |
C2 |
C3 |
C4 |
C1 |
C2 |
C3 |
C4 |
||||
|
功率kw |
7.5 |
11 |
15 |
11 |
15 |
18.5 |
15 |
18.5 |
22 |
30 |
18.5 |
22 |
30 |
37 |
|||
|
减速器 |
ZQ40 |
ZQ50 |
ZQ50 |
ZQ50 |
ZQ50 |
ZQ65 |
ZQ50 |
ZQ65 |
ZQ65 |
ZQ65 |
ZQ65 |
ZQ65 |
ZQ65 |
ZQ65 |
|||
|
F1 |
1802 |
1882 |
1882 |
2007 |
2007 |
2240 |
2248 |
2360 |
2360 |
2360 |
2510 |
2510 |
2510 |
2510 |
|||
|
F2 |
1250 |
1260 |
1315 |
1365 |
1430 |
1480 |
1560 |
1660 |
1660 |
1700 |
1740 |
1740 |
1780 |
1870 |
|||
|
E |
920 |
945 |
945 |
1050 |
1050 |
1171 |
1181 |
1286 |
1286 |
1286 |
1367 |
1367 |
1367 |
1367 |
|||
|
TH型功率表 |
|||||||||||||||||||
|
型号 |
容量0.8t/㎥ |
容量1.25t/㎥ |
容量2t/㎥ |
||||||||||||||||
|
Hm |
功率kw |
Hm |
功率kw |
Hm |
功率kw |
Hm |
功率kw |
Hm |
功率kw |
Hm |
功率kw |
Hm |
功率kw |
Hm |
功率kw |
Hm |
功率kw |
||
|
TH315 |
16 |
7.5 |
40 |
11 |
|
|
35 |
11 |
40 |
15 |
|
|
20 |
11 |
35 |
15 |
|
|
|
|
TH400 |
24 |
11 |
40 |
15 |
|
|
18 |
11 |
35 |
15 |
40 |
18.5 |
20 |
15 |
30 |
18.5 |
|
|
|
|
TH500 |
28 |
15 |
40 |
18.5 |
|
|
28 |
15 |
40 |
18.5 |
|
|
18 |
18.5 |
25 |
22 |
40 |
30 |
|
|
TH630 |
24 |
18.5 |
34 |
22 |
40 |
30 |
24 |
18.5 |
34 |
22 |
40 |
30 |
14 |
22 |
24 |
30 |
35 |
37 |
|
订货型号编写
订货型号包括:型号及料斗型式——驱动号——上下轴距(m)——左右装。例如:TH400型、深斗Sh、驱动C2、上下轴距20.645m、右装提升机型号为:TH400Sh——C2——20.645——右装
最热动态
- ● NE系列板链式提升机
- ● 斗提机械输送带问题处理方法
- ● 垂直提升机试车时要注意什么问题
- ● 掌握以下5点让你选到合适型号的斗
- ● 胶带式提升机效率更高
- ● 怎样让斗子输送机多用几年?
- ● 斗式提升机链条更换快速方法
- ● 斗式提升机马力计算
- ● 斗式提升机工程指南
- ● 斗式提升机结构








13582022680
产品咨询
关于我们
联系我们