提升机斗轮尾轮出现故障的处理方式
发布日期:2015-06-25 浏览次数:
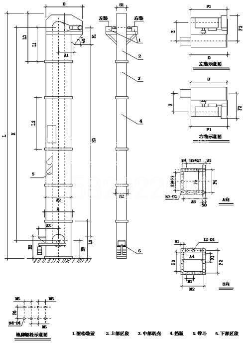
因为提升机的高度非常高,普通的10米左右算小的,高一点的能达到40米,所以运行过程中经常会出现头轮尾轮安装不正,不在同一条直线上的问题,遇到这种问题应做如下处理:
首先要找出故障原因,先看头轮和底轮的传动轴是否在同一垂直平面内,或是否平行,一般有这样几种情况
头轮和底轮的传动轴在同一垂直平面内且不平行;两传动轴都安装在水平位置且不在同一垂直平面内;两传动轴平行,在同一垂直平面内且不水平一般来讲,不管是出现上面哪种原因都会造成对机器的损害,影响正常生产。

处理方式:
1 重新布置底轮并校正机壳。采用吊线的方式,从上到下,依次进行校正;
2 一直调整到整机中心线在1 000 mm高度上垂直偏差不超过2 mm,积累偏差不超过8 mm就可以了。
上面资料由石家庄田龙机械设备有限公司整理,转发请标示出我公司的网址: 田龙机械公司是专业制造提升机,NE斗式提升机,NSE斗式提升机,TH,TD皮带斗式提升机,板链提升机,环链提升机的专业厂家。
- 上一篇:为什么田龙推荐HL斗式提升机
- 下一篇:NE板链提升机
最热动态
- ● NE系列板链式提升机
- ● 斗提机械输送带问题处理方法
- ● 垂直提升机试车时要注意什么问题
- ● 掌握以下5点让你选到合适型号的斗
- ● 胶带式提升机效率更高
- ● 怎样让斗子输送机多用几年?
- ● 斗式提升机链条更换快速方法
- ● 斗式提升机马力计算
- ● 斗式提升机工程指南
- ● 斗式提升机结构








13582022680
产品咨询
关于我们
联系我们